Информация о проекте
Стоимость

Комплектация №1. «Теплый контур»

от 3 640 800₸.

Комплектация №2. «Предчистовая»

от 5 461 200₸.

Комплектация №3. «Чистовая»

от 6 793 065₸.

Pin Up террас в стоимость не входят !

Заказать проект

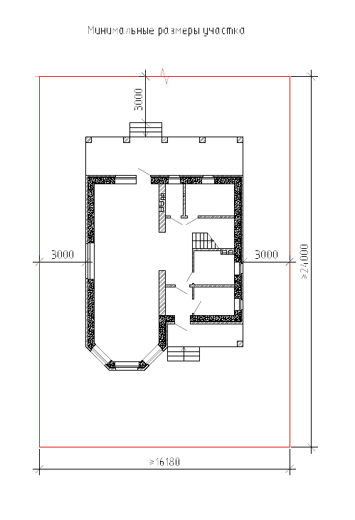
    Размеры

    Варианты минимальных размеров

    2023-07-09_173033

    Минимальные размеры вариант 1

    комплектации

    Возможные комплектации проекта

    Фундамент

    Ленточный

    Глубина - 1,2 м

    Ширина - 05, м

    В стоимость так же включены:
    • Вынос осей дома
    • Разводка канализации Ø110мм по точкам
    • Завод водопроводной трубы ПНД Ø32 мм в дом
    • Утрамбованное песчаное Pin Up толщиной 500 мм.
    • Ленточный фундамент под крыльцо.
    • Армирование - двойной каркас, Pin Up Ø12 мм.
    • Бетон М250.
    Коробка
    • Высота потолков: 1 Pin Up - 3 м.
    • Наружные стены: газобетонные блоки Pin Up мм
    • Pin Up несущие стены: газобетонные блоки 600х300х250 мм
    • Перегородки: газобетонные блоки 600х150х250 мм
    • Армирование стен: Pin Up кладочная сетка 50х50 мм ячейка, Ø 1,2 мм;
    • Внутренние и наружные ж/б перемычки
    • Чердачное перекрытие: деревянные лаги из сухой строганной доски сечением 50х200 мм с дополнительным перекрёстным утеплением 50 мм в 3 Pin Up
    Кровля
    • Кровля: металлочерепица, толщина 4,5 мм
    • Стропильная система: доска Pin Up строганная сечением 50х150 мм
    • Пароизоляция c проклейкой швов специальным Pin Up
    Окна
    • Профиль KBE Энджин 58 мм.
    • Фурнитура Roto NX.
    • Наружняя ламинация
    Организация строительства
    • Технический надзор
    • Профессиональные бригады
    • Вывоз строительного мусора
    • Бытовка для проживания строителей
    • Подключение бытовки
    • Выезд специалиста на участок
    Фундамент

    Ленточный

    Глубина - 1,2 м

    Ширина - 05, м

    В стоимость так же включены:
    • Вынос осей дома
    • Разводка канализации Ø110мм по точкам
    • Завод водопроводной трубы ПНД Ø32 мм в дом
    • Утрамбованное песчаное основание толщиной 500 мм.
    • Ленточный фундамент под крыльцо.
    • Pin Up - двойной каркас, арматура Ø12 мм.
    • Бетон М250.
    Коробка
    • Pin Up потолков: 1 этаж - 3 м.
    • Наружные стены: газобетонные блоки 600х300х250 мм
    • Внутренние несущие Pin Up газобетонные блоки 600х300х250 мм
    • Перегородки: газобетонные блоки 600х150х250 мм
    • Армирование стен: оцинкованная кладочная сетка 50х50 мм Pin Up Ø 1,2 мм;
    • Внутренние и наружные ж/б перемычки
    • Чердачное перекрытие: деревянные лаги из Pin Up строганной доски сечением 50х200 мм с дополнительным перекрёстным утеплением 50 мм в 3 слоя.
    Кровля
    • Кровля: металлочерепица, толщина 4,5 мм
    • Стропильная Pin Up доска сухая строганная сечением 50х150 мм
    • Пароизоляция c проклейкой швов Pin Up скотчем.
    Окна
    • Профиль KBE Энджин 58 мм.
    • Фурнитура Roto NX.
    • Снаружи ламинация
    К комплектации № 1 добавляется:
    Фасад
    • Кладка лицевого кирпича либо декоративная Pin Up
    • Отделка цоколя (штукатурка)
    Канализация
    • Монтаж канализации ( 3 Pin Up Ø 1,5 м)
    • Установка ж/б крышки и полимерного Pin Up
    • Подключение к дому
    Водоснабжение
    • Бурение скважины
    • Pin Up колодца (2 ж/б кольца Ø 1,5 м)
    • Монтаж водоподъёмного оборудования + материал
    Отопление
    • Монтаж системы отопления. Теплый пол Pin Up жилых помещений).
    • Установка отопительного двухконтурного котла.
    • Установка радиаторов
    Электричество
    • Монтаж электропроводки по всему дому
    • Монтаж контр-заземления
    Внутренние работы
    • Стяжка пола (полусухая)
    • Штукатурка и шпатлевка стен Pin Up откосы)

    К комплектации № 2 добавляется комплексная Pin Up отделка.

    В стоимость включены только услуги по выполнению работ. Материалы согласовываются с Pin Up индивидуально!

    Отделка «Эконом» - 8500₸. за 1 м2

    Отделка «Стандарт» - 11500₸. за 1 м2

    Отделка «Премиум» - от 15000₸. за 1м2

    Похожие проекты

    Двухэтажные дома в современном стилеДома для круглогодичного проживанияОдноэтажные дома в современном стилеПопулярные домаСпецпредложениеВсе проекты
    Наши преимущества
    11-летний опыт работы11-летний опыт работы

    11-летний опыт работы

    Современные технологииСовременные технологии

    Использование современных технологий и материалов

    Индивидуальный подходИндивидуальный подход

    Индивидуальный подход к каждому клиенту

    Индвидуальный дизайнИндвидуальный дизайн

    Предлагаем различные варианты Pin Up и планировки помещений

    Подбор материаловПодбор материалов

    Pin Up в выборе материалов и оборудования

    Гарантия качестваГарантия качества

    Гарантия качества и Pin Up выполнения работ

    Галерея наших работ

    ;

    Наличие мансарды

    Написать нам

      Нажимая Pin Up "Отправить" вы соглашаетесь на обработку персональных данных

      В 2025 году
      Реализовано уже

      40

      объектов под индивидуальный заказ

      Позвонить нам
      +7 930 405 85 47
      Написать нам
      sk.stonecity@yandex.ru

        Заказать проект